Web Analytics
Home Sale Brochure About Us Cottages Shepherd's Huts Contact Us

Tel: 0845 388 4016

Reception Hall

A welcoming entrance is provided via a panel door with glazed insert, opening into a bright and inviting reception hall. Finished with laminate flooring and a radiator, the space flows seamlessly into the heart of the home.

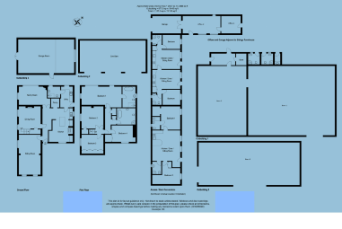
Exceptional Farmhouse

With Holiday Let Business & Development Potential

Sidings Farm - Fen Road - Pidley - PE28 3DF

Kitchen / Breakfast Room  14'5" x 13'11" (4.39m x 4.24m)

A beautifully arranged double-aspect room, enjoying natural light from windows to both the front and side elevations. The kitchen is thoughtfully fitted with a range of cabinetry complemented by generous work surfaces and a central island, creating a sociable and practical space.

A freestanding range cooker forms a focal point, while exposed brickwork adds character and warmth. Further benefits include laminate flooring, a radiator, and a walk-in pantry, enhancing both style and functionality.  Door to:

Ground Floor Shower Room

Stylishly re-fitted, this well-appointed shower room features a contemporary three-piece suite comprising a low-level WC, wash hand basin, and enclosed shower cubicle. Complementary tiling and a rear-aspect window provide both practicality and natural light.

First Floor Landing

A spacious and practical landing area providing access to all bedrooms and bathroom facilities. Includes an airing cupboard and additional storage, ensuring functionality is seamlessly integrated into the home.


Principal Bedroom Suite  24'0" x 13'2" (7.32m x 4.01m)

An impressive principal suite of generous proportions, enjoying a dual aspect with a striking full-height picture window framing views across the surrounding countryside. Additional windows enhance the sense of light and space, creating a tranquil and luxurious retreat.  Radiator.

Contact us today on 0845 388 4016

Utility Room  13' 7" x 7' 7" (4.14m x 2.31m)

A highly practical addition, the utility room is fitted with a range of base units and complementary work surfaces. With a window to the rear and external door to the side, it provides convenient secondary access and functionality for day-to-day living. Additional features include laminate flooring and a radiator.  Door to:

Sitting Room  25'7" x 13'3" (7.80m x 4.04m)

 From kitchen to a generously proportioned principal reception room, enjoying a dual aspect with windows to the front and side. This elegant space offers ample room for both relaxation and entertaining, enhanced by an abundance of natural light and a comfortable, welcoming atmosphere.  Under-floor heating with wood effect ceramic tiling.

Family Room  19'0" x 13'3" (5.79m x 4.04m)

A beautifully proportioned dual-aspect reception room, enjoying an abundance of natural light from windows to the side and rear elevations. This inviting space offers a relaxed and versatile setting for everyday living, centred around a charming wood-burning stove that creates a warm and cosy focal point. A radiator ensures comfort throughout the seasons, making this an ideal room for both quiet evenings and informal entertaining. Views over surrounding countryside and impressive sunsets.

Dining Room  17'8" x 13'2" (5.38m x 4.01m)

A characterful and well-proportioned dining space, ideal for both formal entertaining and everyday family use. Twin windows to the side elevation provide natural light, while a central fireplace creates a warm focal point. Additional features include a radiator, understairs storage cupboard, and staircase rising to the first floor.

En Suite Bathroom

Elegantly re-fitted to a high standard, the en suite features a four-piece suite comprising a low-level WC, wash hand basin on bespoke cabinet, freestanding roll-top bath with mixer shower attachment, and a spacious walk-in shower with drench-style fitting. Finished with tiled flooring, a heated towel rail, and a side-aspect window.  Under-floor heating.

Bedroom Two 14'2" x 13'0" (4.32m x 3.96m)

A spacious double bedroom with a window to the side elevation, complemented by a walk-in wardrobe and radiator.

Bedroom Three  13'1" x 9'9" (3.99m x 2.97m)

A well-appointed double bedroom featuring a range of fitted wardrobes, a side-aspect window, and radiator.

Bedroom Four  14'5" x 10'6" (4.39m x 3.20m)

Another comfortable double bedroom, benefiting from a side-aspect window, radiator, and double built-in wardrobe.

Family Bathroom

Beautifully appointed and finished in a contemporary style, the family bathroom comprises a four-piece suite including a freestanding bath, separate shower cubicle, high-level WC, and wash hand basin on bespoke cabinet. Complementary tiling, a heated towel rail, tiled flooring, and a side-aspect window complete the space.  Under-floor heating.

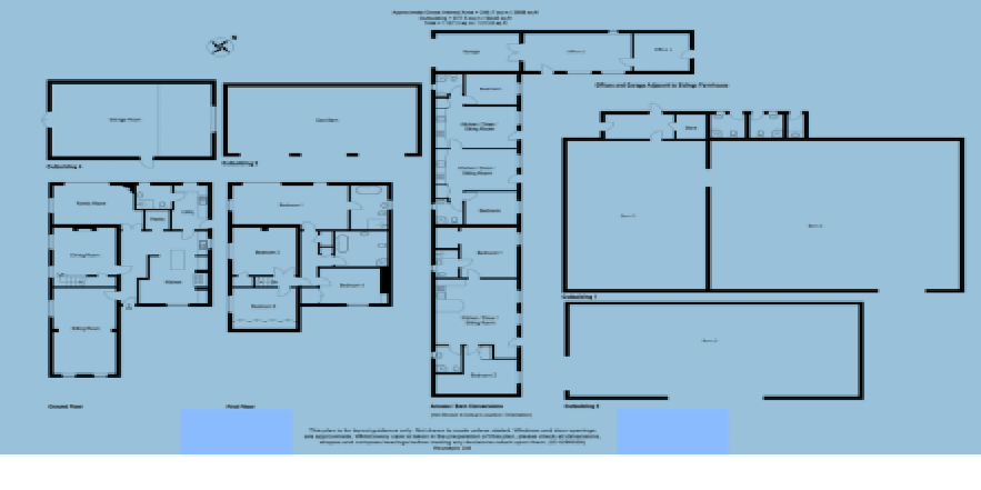
Farmhouse Details